About
Our Company
Management Team
Our Agents
Our Listings
Pre-Construction
Assignment Listings
MLS Listings
Service
For Buyers
For Sellers
For Agents
FCRI Academy
CMHC Calculator
Developer
Blog
Trending News
Career
Agent Team
Full-Time Jobs
Contact Us
Hamburger Toggle Menu
Login
$789,900
Concord Canada House is a new condo community by Concord Adex currently under construction at 23 Spadina Avenue, Toronto.
Floor Plans
Suit Details
Price Details
Location
Contact Us
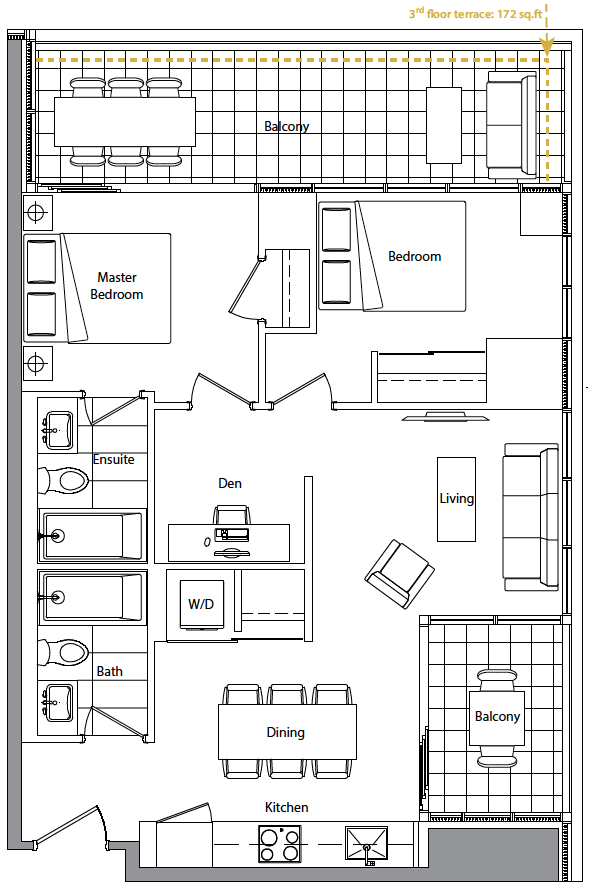
Suite Details
Size: 763 + 192 sq.ft
Exposure/View: E, N
Occupancy: 2025
Locker: 0
Parking: 0
Bedroom: 2 + 2
Bathroom: 2
Price info
Listing Price: $789,900
Original Price: $798,400
Deposit paid by Assignor: 35%
Down Payment: 5% of listing price
Remaining Balance: to be paid upon builder consent
Floor Plans
Location
Contact Us For More Info
Are You a realtor?
*
Yes
No
0 / 180
Contact Us
Please do not fill in this field.
The relevant assignment in this areas
Contact US
Should you have any questions or inquiries , please contact us via the following methods:
6479978781
Contact Us For More Info
Are You a realtor?
*
Yes
No
0 / 180
Contact Us
Please do not fill in this field.
Please do not fill in this field.