About
Our Company
Management Team
Our Agents
Our Listings
Pre-Construction
Assignment Listings
MLS Listings
Service
For Buyers
For Sellers
For Agents
FCRI Academy
CMHC Calculator
Developer
Blog
Trending News
Career
Agent Team
Full-Time Jobs
Contact Us
Hamburger Toggle Menu
Login
$110,000,0
88 Queen Condos is a new condo development by St. Thomas Developments Inc. currently under construction at 88 Queen Street East, Toronto. The development is scheduled for completion in 2024. 88 Queen Condos has a total of 569 units.
Floor Plans
Suit Details
Price Details
Location
Contact Us
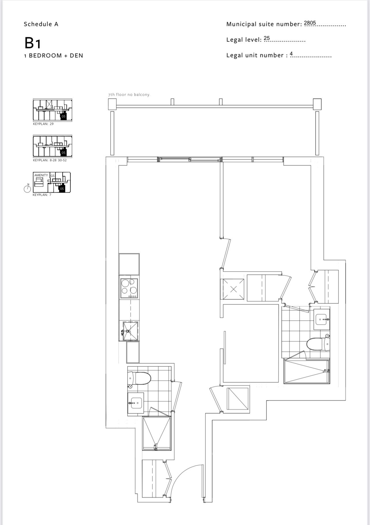
Suite Details
Size: 585 sq. ft + 90 sq. ft
Exposure/View: S
Occupancy: 2024
Locker: 1
Parking: 1
Bedroom: 1+1
Bathroom: 2
Price info
Listing Price: $110,000,0
Original Price: $905,000
Deposit paid by Assignor: $179,400
Remaining Balance: to be paid upon builder consent
Floor Plans
Location
Contact Us For More Info
Are You a realtor?
*
Yes
No
0 / 180
Contact Us
Please do not fill in this field.
The relevant assignment in this areas
Contact US
Should you have any questions or inquiries , please contact us via the following methods:
647-532-6688
Contact Us For More Info
Are You a realtor?
*
Yes
No
0 / 180
Contact Us
Please do not fill in this field.
Please do not fill in this field.